KREISLAUFFÄHIGE SANIERUNG VAN DER NÜLL GASSE 22


#14 - 22.09.2025 Update – Was ist inzwischen geschehen und warum verzögert sich der Baustart?
Nach der letzten sehr erfreulichen Nachricht im Februar vom positiven Baubescheid ist es in den letzten Monaten sehr still geworden um unser Projekt – zumindest nach außen.
Dafür gibt es genau einen Grund: Wir kämpfen darum, die Van der Nüll Gasse auch wirtschaftlich darstellen zu können, so wie es von Anfang an geplant war. Kreislauffähig Sanieren im Sinne der EU-Taxonomie darf aus unserer Sicht nicht bedeuten, dass die Kosten den Ertrag auffressen.
Aber was genau sind die Themen?
Gleich vorweg: Die Mehrkosten im Zusammenhang mit der Kreislaufwirtschaft belaufen sich für unser Projekt aktuell auf rund +7 % der gesamten Baukosten (OHNE Berücksichtigung der Förderung!).
Das ist eigentlich aus der Sicht der Nachhaltigkeit ein absoluter Grund zum Feiern, denn damit ist bewiesen, nachhaltig bauen ist eben doch leistbar. Wo hängen wir also?
· Teurer Posten Doppel-T-Träger - er kostet 39% mehr als die klassische Stahlbeton-Elementdecke
· Unsere Stauß-Thermo-Fassade verursacht 35% an Mehrkosten gegenüber der klassischen WDVS-Fassade
· Probeöffnungen und Sondierungen wurden mit 40% Mehrkosten gegenüber einer klassischen Sanierung beziffert
· Dass Heizung und Kühlung mit Geothermie teurer ist als eine Luft-Wasser-Wärmepumpe sei hier nur der Vollständigkeit halber dazu erwähnt, weil grundsätzlich allgemein bekannt
Die Reinigung der Mauerziegel zur Wiederverwendung ist dagegen kostenneutral, da der Kauf von neuem Ziegel entfällt.
Der Versuch, die Gipskartonplatten wiederzuverwenden, kann aktuell noch nicht bewertet werden. Wir werden es auf jeden Fall ausprobieren, Näheres dazu gibt es im kommenden Blog.
Und auch über den geplanten Re-Use von Fensterglas werden wir demnächst berichten. Diese verursachen keine zusätzlichen Kosten, sondern sind (auch wegen des Pilotcharakters) für unser Projekt kostenneutral. Aber wie gesagt, dazu später mehr!
FAZIT:
Kreislauffähig Sanieren ist sehr wohl durchdacht möglich, ohne die Kosten dafür eskalieren zu lassen, nach wie vor gilt: Eine gute integrale Planung ist hier alles!
Die Allgemeinkosten dagegen für den Rückbau und die Sanierung eines relativ kleinen Gebäudes mit Nachverdichtung durch Aufstockung sind sehr hoch und für den Bauherrn ist es schwierig darstellbar, wie die Kosten über die Bestandsverwertung wieder ohne Verlust bzw. zumindest mit einer geringen Marge wieder einbringbar sind. Eine zufriedenstellende Lösung dafür haben wir nach wie vor nicht. Hilfreich kann hier jedenfalls eine aussagekräftige Analyse der Lebenszykluskosten sein – und diese überzeugend darzustellen, ist nach wie vor eine Challenge.
#13 - 04.02.2025 Die Baubewilligung ist da! Das Gebäude ist bereit für den Rückbau
Der 27. Jänner 2025 brachte gute Neuigkeiten: Wir haben eine Baubewilligung und können starten.
Was ist in der Zwischenzeit alles passiert?
- Mit Ende des Jahres sind alle Mieter ausgezogen.
- Tische, Sessel, andere Möbel, Küchen- und Sanitäreinbauten wurden abgebaut, ausgeräumt und die Wiederverwendung innerhalb des Bauunternehmens organisiert (zB für Baustellencontainer) bzw. in Depots für die Zwischenlagerung gebracht.
Aktuell wird intensiv an der Detail- und Ausführungsplanung gearbeitet.
- Es finden Abstimmungsgespräche mit ausführenden Firmen wie zB zur Stauß Thermo Fassade, diversen Fensterfirmen, etc. statt
- Die Planung zur Ausführung der Geothermie ist in Gang, sowie deren Eintaktung in den Bauablauf.
- Kalkulation und Vergaben laufen.
#12 - 05.09.2024 Ein Meilenstein ist geschafft: Baueinreichung erledigt!
Für Sedlak Immobilien war es am 30.08.2024 eine Premiere, wir haben das erste Mal ein Bauverfahren über https://mein.wien.gv.at/dbv/einreichung digital eingereicht. Und das Procedere hat sich als angenehm unkompliziert herausgestellt - größte Herausforderung war, auf dem stark verkleinert dargestellten Einreichplan das richtige Feld für die elektronische Signatur zu finden und zu "treffen" ;). Alle weiteren Schritte erfolgen nun elektronisch.
Nach der BLOG-"Sommerpause" berichten wir bald wieder über unsere neuesten Erkenntnisse und Erfahrungen beim Bauen im Bestand in der Van-der-Nüll-Gasse.
#11 - 10.07.2024 Heizen und Kühlen mit Geothermie
Es war nicht einfach, aber mit der sehr hilfreichen Beratung von Gerhard Bayer und Tina Tezarek von ÖGUT ist die Entscheidung gefallen:
Im Innenhof werden 6 Sondenbohrungen für den Betrieb einer Wärmepumpe mittels Geothermie durchgeführt, die laut den Berechnungen der TGA-Planung für die Heizung und Kühlung ausreichen sollten. Herausforderung Nummer 1 war der Toreingang zum Innenhof, der nur 2,33 m hoch ist und daher nur kleinen Bohrgeräten Zugang gewährt. Herausforderung Nummer 2 ist die begrenzte Fläche im Innenhof - mit 6 Bohrungen ist der Platz maximal ausgereizt.
Daher haben wir auch die Möglichkeit geprüft, im öffentlichen Raum - nämlich an der Gehsteigkante - Sondenbohrungen durchzuführen. Die gute Nachricht: Das Bewilligungsverfahren ist zeitlich so überschaubar, dass wir gegebenenfalls auch später (wenn die Bohrungen im Innenhof erfolgt sind) noch 3 zusätzliche Bohrungen durchführen können. So ist jedenfalls sichergestellt, dass wir ausreichend Wärme aus der Erde erhalten.
Gleichzeitig haben wir uns entschlossen, die Wohn- und Büroeinheiten im Gebäude mit dezentraler Warmwasserbereitung auszustatten, die in einer Kombination mit einer PV-Anlage mit Strom versorgt werden. Durch eine spezielle Schichtbeladung des Speichers kann die Photovoltaik Energie über den ganzen Tag genutzt werden. Eine Alternative, die laut Auskunft von Experten die Sicherstellung der Einhaltung von Hygienevorschriften im Hinblick auf Legionellen vereinfacht und vor allem angesichts der begrenzten Möglichkeiten für Bohrungen den Erdwärmebedarf verringert.
Skizze möglicher Bohrungen im Innenhof der Liegenschaft VDN22 mit Abständen:

#10 - 27.05.2024 DIE planung der Aufbauten im Bestand ist fertig
Viele Diskussionen und Überlegungen in unterschiedlichen Konstellationen bringen uns der Einreichung zur Baugenehmigung - langsamer als geplant - endlich näher:
Die Grundrisse wurden noch einmal angepasst, um dem Kreislaufziel "Verlängerung der Nutzungsdauer" Rechnung zu tragen und vom Bestand so viel wie möglich zu erhalten. Dadurch müssen nur wenige Wände adaptiert werden. Neue Zwischenwände werden mit einer Unterkonstruktion aus Holz (oder Metallprofilen) in Verbindung mit Lehmbauplatten gebaut. Die Dämmung erfolgt entweder mit Flachs oder einem alternativen nachwachsenden Dämmmaterial. Für die Nassräume ist die Gipskartonplatte nach wie vor die sinnvollste Alternative; das Recyclingwerk Stockerau - siehe Blog #7 - ermöglicht die Wiederverwertung.
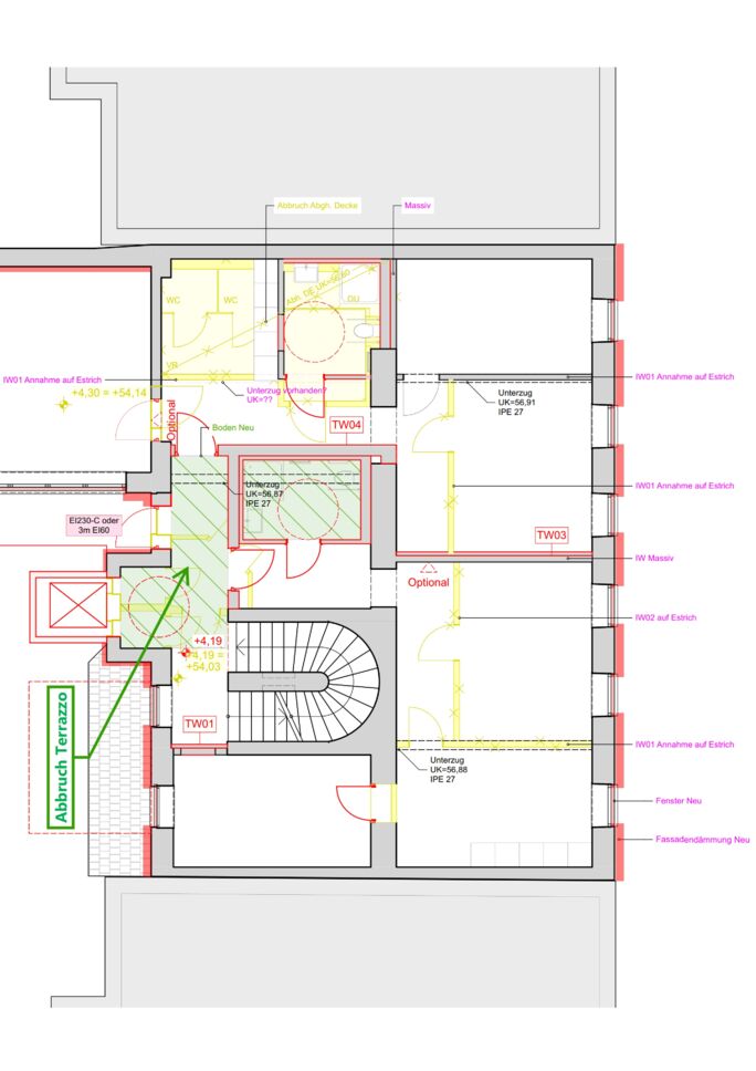
Der schöne Terrazzoboden bleibt teilweise erhalten (lange Besprechungen gingen dieser Entscheidung voraus). Das musste auch mit der TGA-Planung abgestimmt werden, weil dadurch keine Installationen im Bodenaufbau möglich sind.
Die abgetragenen Ziegel aus dem Rückbau werden für Wohnungstrennwände und die Drempelmauer (Kniestock im 3. Obergeschoß) verwendet. Ambitioniertes Zeil: Ziegel auch von anderen Sanierungsbaustellen aus dem Unternehmen zu gewinnen.
Für die Fasssadendämmung haben wir 3 alternative Möglichkeiten zur herkömmlichen WDVS-Dämmung überprüft:
Die vorgehängte hinterlüftete Fassade ist zwar erprobt und jedenfalls rückbaubar und somit kreislauffähig, aber auch die teuerste Variante und auf der Straßenseite möglicherweise nicht mit den stadtbildrelevanten Vorgaben der MA 19 kompatibel.
Daher haben wir die Möglichkeit einer ausschließlich mechanisch befestigten WDVS- Fassade aus Mineralwolle überprüft, die in Deutschland durchaus üblich ist, in Österreich allerdings noch keine Zulassung hat. Der Vorteil im Bezug auf die Kreislauffähigkeit ist offensichtlich: Es wird nichts geklebt, dadurch ist ein sortenreiner Rückbau möglich. Auch wenn das Produkt selbst sehr energieintensiv ist, liefert es mit der doch sehr langen (tatsächlichen) Nutzungsdauer und der Recyclierbarkeit Argumente für die Kreislauffähigkeit. Vorgestellt wurde uns diese Variante von Weber-Saint Gobain.
Die Thermofassade von STAUSS ist die bislang spannendste Variante: Sie ist vergleichsweise kostengünstig, kreislauffähig und scheint einfach in der Umsetzung; Es gibt auch dafür bislang in Österreich keine Zulassung des Systems, sondern nur für die Einzelkomponenten, sie wurde vor allem bei Einfamilienhäusern umgesetzt. Auf die Mauer wird ein Fassadengewebe gedübelt, Grundputz aufgetragen, mit mineralischem Dämmstoff ausgeblasen, Deckverputz angebracht und fertig. https://www.stauss-perlite.at/stauss-ziegelgewebe/thermo-fassade

#9 – 18.04.2024 Wir entwickeln ein Bewertungstool als Entscheidungsgrundlage
Die letzten Wochen haben wir darauf verwendet, Entscheidungen über die Aufbauten (Decken, Wände, Dachgeschoßaufbau…) zu treffen.
Das hat uns gezeigt, dass wir eine Entscheidungsgrundlage benötigen, mit der wir möglichst einfach die unterschiedlichen Varianten bewerten können. Die relevanten Faktoren dafür (zu diesem Zeitpunkt des Projekts) haben wir identifiziert, alle sechs Faktoren sind gleich gewichtet:
· Lebensdauer
· Materialkreislauf (wie gut ist das Material wiederverwertbar)
· Rückbaubarkeit/Verbindungstechnik
· OI3_KON – Indikator des IBO (Institut für Bauen und Ökologie)
· Wirtschaftlichkeit
· Verarbeitung auf der Baustelle
Bewertet wird mittels Schulnotensystem (1 bis 5, wobei 1 „Sehr gut“ bedeutet und 5 „Nicht Genügend“).
Die Materialherkunft, die später für den sogenannten „Zirkularitätsfaktor“ auch sehr wichtig ist, haben wir zu diesem Zeitpunkt noch nicht miteinbezogen.
Die Lebensdauer eines Bauteils berechnen wir mittels Mittelwert der einzelnen Bauteilschichten.
Für die Rückbaubarkeit bzw. Fügetechnik haben wir eine sehr interessante Klassifizierungsmatrix aus der Diplomarbeit von Alexander Lanner an der TU Graz („Entwicklung eines Klassifizierungssystems für Rückbau- bzw. Fügetechniken von Baukonstruktionen in Österreich“) herangezogen, die Sortenreinheit, Lärm- und Staubemissionen, Erschütterungen und Rückbaukosten als Faktoren einbezieht.
Der OI3_KON-Indikator für Bauteile des IBO zeigt die ökologische Qualität von gängigen Konstruktionen und bietet einen Benchmark
Mit „Verarbeitung auf der Baustelle“ wird die Komplexität der Errichtung bewertet, vor allem hinsichtlich Zeitaufwands und benötigter Fachkompetenz.
Boden
Die Diskussion, ob der Terrazzo in allen Geschoßen (wo vorhanden) erhalten bleiben kann, ist noch nicht abgeschlossen. Aufzustellende Zwischenwände erfordern ein teilweises Herausreißen des Bodens und bringen die unterschiedlichen Ansichten zu Ästhetik, bauphysikalischen Aspekten und Kosten in der Planungsgruppe zutage.
Dachgeschoßausbau (Decken, Dach, Erker/Dachgaube)
Der Vergleich einer „Nur-Holz-Variante“ mit Brettsperrholzelementen mit der konventionellen Variante mittels Stahlrahmen und Holzausfachung hat eine Präferenz zu letzterer gebracht. Entscheidende Faktoren: Die höheren Kosten verbunden mit der Tatsache, dass die Wiederverwendbarkeit der Brettsperrholzelemente schwer bis nicht möglich ist und gleichzeitig einen hohen Ressourcenverbrauch bedeutet. Aufgrund der Geometrie wäre zudem für die Brettsperrholz-Variante ein enormer Stahlträger notwendig.
#8 - 20.03.2024 wir recherchieren und das bim modell entwickelt sich
Die letzte Planungsbesprechung hat neue Entscheidungen gebracht: Die Aufstockung wird nicht wie ursprünglich geplant vollständig in Holzbauweise erfolgen, sondern bis auf das 2. Dachgeschoß mit Thermoziegel. Der Statiker hat gegen die Leichtbauweise Bedenken geäußert.
Grundsätzlich befinden wir uns intensiv in der Materialienrecherche und im Austausch mit den Herstellern, der endgültige Aufbautenkatalog steht noch nicht fest - es gibt jedenfalls gute Lösungsansätze für Dämmung, Zwischenwände und Bodenaufbauten. Für unser Projekt müssen sie leicht trennbar sein, sollten am Ende des Lebenszyklus des Gebäudes wiederverwendet oder recycelt oder bedenkenlos in den biologischen Kreislauf wieder eingefügt werden können. Wir denken da an Lehm, Stroh, Kalk, Hanf, auch Schafwolle ist im Gespräch - mal sehen.
Die Planung hat inzwischen das BIM-Bestandsmodell ganz fertig gestellt. Die Kriterien für die Kreislauffähigkeit werden nun kontinuierlich als Parameter eingearbeitet. Es dient als Grundlage für das As-built Modell, mit dem wir die Kreislauffähigkeit nachweisen. Und dazu greifen wir einen sehr guten Gedanken von Thomas Romm auf: Damit die Umnutzung bzw. der Weiterbau des Gebäudes in der Zukunft leichter planbar wird, werden wir auch Informationen über die Konstruktion in das Modell mit aufnehmen.
#7 - 29.02.2024 Potenzialanalyse für die Verwendung der Abbruchmaterialien ist fertig
Anhand des BIM-Modells wurden die Abbruchmengen und Materialitäten bestimmt und die Daten in einer Excel-Tabelle von Level(s) Indikator 2.2. aufgearbeitet. Zur Erinnerung: Mindestens 70% der nicht gefährlichen Bau- und Abbruchabfälle (nach Masse) müssen zur Wiederverwendung oder zum Recycling vorbereitet werden - wobei die Verfüllung nicht als Recycling im Sinne dieses technischen Kriteriums gilt.
Wo hier die Herausforderungen stecken, sei am Beispiel Gipskartonplatten erläutert:
Ab 2026 müssen Materialien, die Gips beinhalten, recycliert werden (Deponieverbot). Wir haben Rigips Austria kontaktiert und nachgefragt, ob sie eine Lösung für unsere 5,5 Tonnen Gipskartonplatten haben, die für das Gebäude definitiv nicht wiederverwendbar sind. Antwort: Geplant ist ein Recyclingwerk in Stockerau, das voraussichtlich Mitte 2025 betriebsfertig ist.
Baustart für die VDN ist aber Anfang 2025, wir benötigen daher trockenen Lagerraum, um unsere Platten bis dahin zwischenlagern zu können. Wenn wir keine ökonomische Lösung dafür finden, bleibt im schlimmsten Fall die Deponierung - und damit würden wir wertvolle Ressourcen vergeuden UND uns selbst hinsichtlich der oben genannten Recyclingvorgaben torpedieren. Wir werden eine Lösung finden.
Definiert werden in der Level(s) Indikator 2.2. Tabelle zwei Absatzwege - empfohlener bester (wie für das Level(s) Berichtsformat definiert) + wahrscheinlichster (was wir für unser Projekt vorsehen) - und das erste Ergebnis zeigt: Die 70% werden wir nach dieser Einschätzung einhalten können.

#6 - 22.01.2024 Zweiter Workshop mit Bauphysik und Statik und Ausnahmegenehmigung zur Überschreitung der Geschoßhöhe
10.01.2024 Treffpunkt Projektraum Buchengasse: Bauherr, Planung, Ausführung, Statiker, Bauphysiker und eine Vertreterin der SCALE als kreislaufkundige Person sitzen im neuen Jahr erstmals in dieser Kombination an einem Tisch.
Der Bauphysiker hat konkrete Lösungsvorschläge mitgebracht, wie die Fußböden in allen Geschoßen so adaptiert werden können, dass möglichst wenig geklebt wird bzw. möglichst einfach wieder auseinandergenommen werden kann.
Auch eine Erkenntnis: Gipskartonplatten durch Lehmplatten, Hanfbauplatten, Strohbauplatten zu ersetzen, wäre zwar jedenfalls aus technischer Sicht möglich und sinnvoll und würde die Ökobilanz verbessern, ist allerdings offenbar noch sehr teuer. Angebote werden jedenfalls eingeholt werden.
Ausnahmegenehmigung für Überschreitung der Gebäudehöhe - der novellierte §69 der Wiener Bauordnung machts möglicherweise möglich
Wer den Blog verfolgt weiß, dass wir Schwierigkeiten haben, die Gebäudehöhe einzuhalten, wenn wir die oberste Geschoßdecke des Bestands erhalten wollen. Auf Nachfrage bei der Stadt Wien, ob im Sinne der Kreislaufwirtschaft eine Ausnahmemöglichkeit besteht, haben wir gute Nachrichten erhalten. Der §69 Wr. Bauordnung wurde im Zuge der aktuellen Novelle um die Ziffer 3a erweitert: Abweichungen, die die Voraussetzungen des Abs. 1 erfüllen, sind weiters nur zulässig, wenn sie nachvollziehbar "dem Erhalt und der Sanierung eines Gebäudes dienen, das in einer Schutzzone liegt oder vor dem 1.1.1945 errichtet wurde und an dessen Erhaltung infolge seiner Wirkung auf das Stadtbild ein öffentliches Interesse besteht". Oder laut ebenfalls neu eingefügten Ziffer 5 "in dauerhafter Weise dem Klimaschutz oder der Klimawandelanpassung dienen". Beide Ziffern treffen auf unsere Sanierung zu - wir dürfen daher mit einer Ausnahmegenehmigung rechnen.
#5 - 05.12.2023 Das Pflichtenheft: Viel Arbeit, die sich (hoffentlich) auszahlt
Damit Planung, Ausführung und Nutzung auch tatsächlich im Sinne der Kreislaufwirtschaft erfolgen, müssen alle Beteiligten genau wissen, was sie zu tun haben. Mit dem Pflichtenheft definieren wir die Kriterien und wer sie wie nachzuweisen hat.
Eine Herausforderung: Unser digitaler Gebäudezwilling (also das "as built"-Modell) soll ja ein Gebäudepass sein, aus dem die Kreislauffähigkeit der Immobilie herauslesbar ist. Bewertungskriterien dafür wurden im WS von Digital Findet Stadt "Materieller Gebäudepass - Digitale Grundlagen für kreislauffähiges Sanieren" letztes Jahr erarbeitet, und genau diese versuchen wir nun einzuarbeiten. Sämtliche Level(s) Kriterien des Makroziels 2 – „Ressourceneffiziente Stoffkreisläufe“ sind in diesen Bewertungskriterien abgebildet
Unsere (nicht neue) Erkenntnis: Teilweise ist der Nachweis für einzelne Kriterien aktuell schwer zu erbringen, denn viele Produkthersteller liefern noch nicht alle Informationen, die wir dafür benötigen; wie hoch zum Beispiel der Anteil der Materialien aus verantwortungsvoll erwirtschafteten nachwachsenden Rohstoffen ist, wie hoch der Anteil an Sekundärprodukten oder der Recyclinganteil bei neu zu verbauenden Materialien. Aber wir sind überzeugt, dass der Transformationsprozess auch am Markt im Gange ist und genau solche Daten künftig einfacher zur Verfügung stehen werden.
#4 - 20.11.2023 Der Erste Workshop: Integrale Planung ist alles
Vorarbeit der SCALE: Bestandsaufnahme der Materialien samt Einstufung mittels Level(s) Indicator 2.2. "Bestandaufnahme vor Abbruch" - die unterschiedlichen Materialien wurden entsprechend ihrer Gefährlichkeit/Unbedenklichkeit und der Möglichkeiten der Verwertung/Wiederverwendung eingestuft. Im Planradar sind sie verortet und abgebildet. Die Klassifizierung bzw. die Risiko- und Potentialanalyse ist also abgeschlossen, sobald die Planung die Mengen übermittelt .
- Level(s) ist ein gemeinsamer Bewertungs- und Berichtsrahmen der EU für nachhaltige Gebäude. Er wird auch in den technischen Kriterien, mit der die Kreislauffähigkeit eines Gebäudes laut EU-Taxonomie nachgewiesen werden kann, ausdrücklich als Mess- und Bewertungsinstrument genannt.
Im Workshop sitzen sich nun Bauherrenvertretung, Planung, Ausführung und ein Mitarbeiter der SCALE gegenüber und diskutieren die vorliegende Studie im Hinblick auf die Kreislauffähigkeit der einzelnen Geschoße. Diskutiert wurde die notwendige Absenkung der obersten Geschoßdecke (Dippelbaumdecke!), die mit hohen Kosten verbunden ist, versus der künftig zu erzielenden (Miet-)Erträge für die dadurch entstehenden zusätzlichen Quadratmeter Nutzfläche durch die Aufstockung.
Nächster Schritt dazu: Termin mit der Stadt Wien zur Abstimmung, ob ausnahmsweise im Sinne der Kreislauffähigen Sanierung die vorgegebene Gebäudehöhe um einige wenige Zentimeter überschritten und damit die Geschoßdecke, wie sie ist, erhalten bleiben könnte.
Auch die Möglichkeiten der Verstärkung der Kellerwände, Trockenlegung des Kellers, Erhalt von Oberflächen und Möglichkeiten der Dämmung wurden intensiv besprochen.
Fazit: Zum nächsten Termin in vier Wochen sind Statiker und Bauphysiker bereits mit dabei!

#3 - 19.10.2023 Begehung mit Statiker: Das Tragwerk sieht gut aus
Zusätzliche Öffnungen im Fundamentbereich werden notwendig sein, um die Einbindetiefe zu prüfen. Das bedeutet: Es muss überprüft werden, ob die Fundamente tief genug sind, um auch bei der geplanten Aufstockung die Stabilität des Gebäudes zu gewährleisten.
Im Keller wurden die Außenmauern zum Teil mit Bruchsteinmauerwerk (Sandstein) hergestellt. Der Bruchstein kommt mit hoher Wahrscheinlichkeit vom Schleifen der Wiener Ringmauer/Stadtmauer – und ist damit auch schon Reuse. Hier liegt allerdings auch schon ein erstes Problem: Die Mauerwerksfestigkeit muss aufgrund der Steinlagerung geprüft werden
Das Ergebnis der Schad- und Störstofferkundung liegt uns inzwischen ebenfalls vor:
- Asbest wurde in diversen Dichtungen gefunden, jedoch zum Glück nicht großflächig! Es muss deponiert werden, die weitere Sanierung ist dadurch nicht verhindert.
- Die Dämmung im Dachboden und Dachgeschoß ist als karzinogen und somit als gefährlich einzustufen. Sie besteht auf künstlichen Mineralfasern wie Glas- und Steinwolle und muss damit ebenfalls deponiert werden.
- Die Flammschutzmittel in den EPS-Dämmungen bewegen sich "innerhalb der Grenzwerte", ebenso die restlichen Schadstoffe (zB. Teerprodukte in den Abdichtungsbahnen). Was das für unser Projekt bedeutet bzw. wie wir mit diesen Materialien verfahren, werden wir klären.
Im nächsten Schritt werden sämtliche verbauten Baustoffe mit dem Analysebericht gegengeprüft, um die Materialien zu identifizieren, die entsorgt bzw. deponiert werden müssen. Nähere Informationen folgen demnächst!
#2 - 28.09.2023 DER ZEITPLAN STEHT
Geplanter Start der Bauausführung ist das 1. Quartal 2025, der Zeitplan ist straff. Neben einigen Abstimmungsterminen zwischen Bauherren, Planung, Bauausführung und Konsulenten (SCALE) hat inzwischen die Bestandsaufnahme und die Schad- und Störstofferkundung stattgefunden:
- Im Juli 2023 hat der Geometer das Gebäude konventionell vermessen und zusätzlich einen Punktwolkenscan durchgeführt. Darunter versteht man eine 3D-Datenerfassungstechnik, bei der eine Vielzahl von Punkten im Raum erfasst wird, mit der ein detailliertes digitales Abbild der Umgebung/des Gebäudes erstellt werden kann.
- Mit diesen Daten hat unsere Planungsabteilung inzwischen genau das realisiert: Als Endergebnis soll ein BIM-Modell "as built" entstehen, aus dem die Kreislauffähigkeit des Gebäudes ersichtlich wird und mithilfe dessen eine Ökobilanz erstellt wird.
- Alle Teams sind auch in Planradar (= Plattform für Baudokumentation, Mängel- und Aufgabenmanagement) und Planfred (= Plattform für Plan- und Dokumentenmanagement) miteinander vernetzt, um durchgängig am gleichen Informationsstand zu sein.
- Mitte September hat unser Sanierungsteam unter Anleitung der SCALE Bauteilöffnungen durchgeführt, die im Planradar ausgewiesen wurden. Fast zeitgleich war auch der Schad- und Störstofferkunder vor Ort und hat Proben genommen. Die Ergebnisse dazu erwarten wir Anfang Oktober.
#1 - WIR STARTEN
Die Van der Nüll Gasse 22 - ein Bestandsobjekt der Sedlak Immobilien - soll saniert werden und für das Bauunternehmen Sedlak steht fest: Wir wollen umsetzen, wovon seit einiger Zeit alle sprechen und starten den Praxistest.
Im Vorfeld konnten wir gemeinsam mit Digital Findet Stadt ein Konzept verwirklichen, das von WieNeu+ gefördert wurde, in dem wir die grundsätzliche Vorgehensweise skizziert und ausgearbeitet haben.
Erstmals werden wir ein Gebäude kreislauffähig im Sinne der EU-Taxonomie sanieren, unter Berücksichtigung der technischen Bewertungskriterien, die im Juni 2023 als delegierter Rechtsakt der Europäischen Kommission veröffentlicht wurden.
Zum besseren Verständnis ist dazu ein ganz kleiner Exkurs nötig:
Die EU-Taxonomie-VO wurde beschlossen, um die Finanzströme in Projekte zu lenken, die zur Verwirklichung der Ziele des European Green Deals wesentlich beitragen,
- wie dem Klimaschutz,
- der Klimawandelanpassung,
- der nachhaltigen Nutzung von Wasser- und Meeresressourcen,
- dem Übergang zu einer KREISLAUFWIRTSCHAFT,
- dem Schutz der Umwelt und
- der Erhaltung der Biodiversität.
Voraussetzung für die Verwirklichung der taxonomiekonformen Sanierung ist die Erfüllung der Kriterien eines der genannten Umweltziele, ohne dabei gleichzeitig einem der anderen Ziele einen bedeutenden Schaden zuzufügen (DNSH-Kriterien = Do no significant harm). Wie die einzelnen Kriterien aussehen, kann man hier im Anhang II unter Punkt 7. Baugewerbe und Immobilien nachlesen.
Das sind die Fakten zum Projekt
1. Das Gebäude ist ein Gründerzeithaus aus dem Jahr 1885, mehrfach saniert, zuletzt im Jahr 2010 durch die Baufirma SEDLAK selbst
2. Nach einer ersten Studie sollen hier 10 neue Wohnungen und 2 Studios auf einer BGF von 1650 m² entstehen (1150 m² Bestand, 500 m" Aufstockung)
3. Bauherr ist die SEDLAK Immobilien GmbH, Planung und Bauausführung erfolgt durch die DI Wilhelm SEDLAK GmbH
4. Begleitet wird das Projekt durch die SCALE GmbH
5. Das Projekt wird von WieNeu+ gefördert

SCALE WEBSITE




















